Mittersill, ein malerisches Städtchen im Oberpinzgau, beheimatet rund 5464 Einwohner und liegt auf einer Seehöhe von 790 Metern. Dank seiner günstigen Lage zwischen dem Nationalpark Hohe Tauern und den Kitzbüheler Alpen ist Mittersill ein beliebtes Reiseziel. Die Nähe zur Panoramabahn in Hollersbach ermöglicht es Besuchern, innerhalb weniger Minuten das Skigebiet der Kitzbüheler Alpen mit über 160 Pistenkilometern zu erreichen. Darüber hinaus bietet die Region zahlreiche Langlaufloipen, Winterwanderwege und Rodelbahnen für Abwechslung und Freizeitspaß. Im Sommer locken Wanderungen und Ausflüge auf den Mittersiller Hausberg oder die Pihapper Spitze (2.513m) Naturfreunde und Abenteuerlustige gleichermaßen. Infrastruktur: Die nächstgelegenen Bahnhöfe befinden sich in Kitzbühel (28 km Entfernung) und Zell am See (28 km Entfernung). Die nächsten Flughäfen sind Salzburg (112 km), Innsbruck (121 km) und München (196 km).

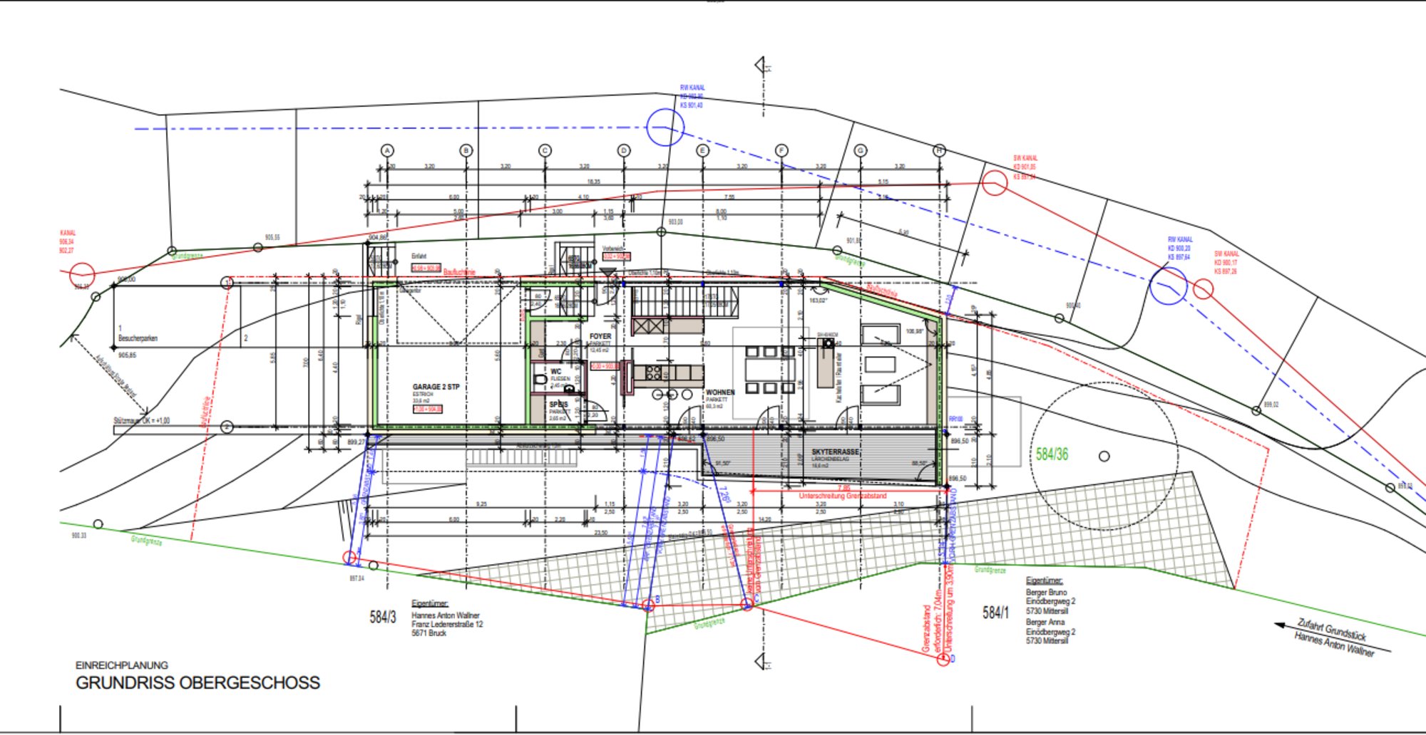
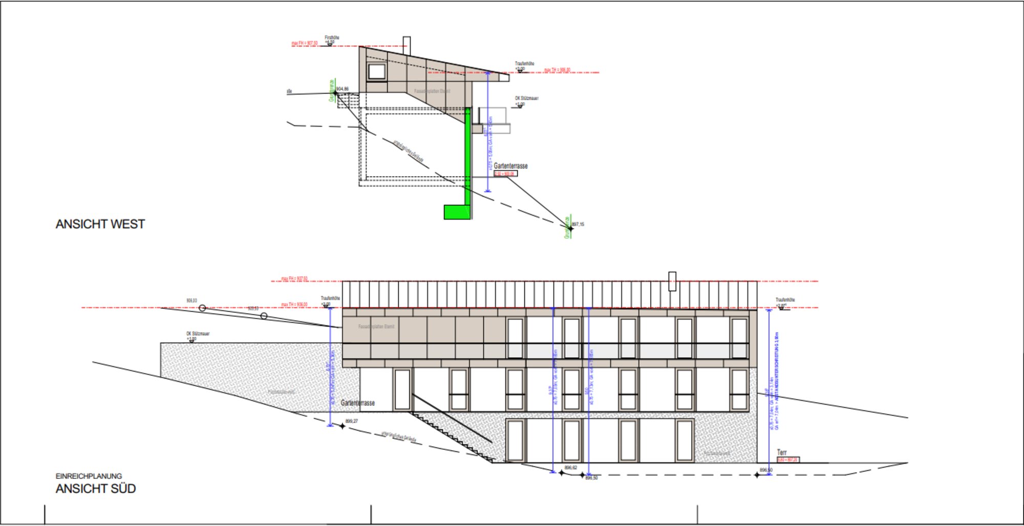
Dieses ca. 691 m² große Grundstück befindet sich in einer sonnigen Aussichtslage in Mittersill und bietet einen atemberaubenden Blick auf die umliegende Berglandschaft. Ein Bauplan für ein Einfamilienhaus liegt bereits vor und ist im Preis enthalten. Gemäß der Planung wird das Haus eine Wohnfläche von etwa 253 m² sowie zusätzlich etwa 50 m² Nutzfläche und 3 nach Süden ausgerichtete Terrassen umfassen. Eine Doppelgarage und ein Wellnessbereich sind ebenfalls vorgesehen. Weitere Informationen erhalten Sie gerne bei einer Besichtigung des Grundstücks vor Ort.
Exposé anfordernFür dieses Grundstück liegt bereits ein Bauplan für ein Einfamilienhaus vor, inklusive der erforderlichen Baugenehmigung, der im Preis inbegriffen ist. Gemäß diesem Plan wird das Haus über eine Wohnfläche von etwa 253 m² sowie zusätzlich etwa 50 m² Nutzfläche und 3 nach Süden ausgerichtete Terrassen verfügen. Zudem sind eine Doppelgarage und ein Wellnessbereich vorgesehen. Weitere Informationen erhalten Sie gerne bei einer Besichtigung des Grundstücks vor Ort.
Das ca. 691 m² große Grundstück liegt in einer sonnigen Aussichtslage in Mittersill und bietet einen herrlichen Blick auf die umgebende Berglandschaft.