Imposante Bergketten, soweit das Auge reicht, grüne Wiesen im Sommer, schneebedeckte Landschaft und strahlend blauer Himmel im Winter. Dazu ein Freizeitangebot, das alle Wünsche erfüllt: das ist Seefeld. Wandern durch die unberührte Natur und die Energie von Karwendel und Wettersteingebirge spüren. Fernab von Städten und überlaufenen Tourismuszentren findet man in Seefeld in Tirol alles, was man zur Erholung vom Alltag braucht. Die Ursprünglichkeit der Tiroler Bergwelt bezaubert. Das waldreiche Plateau auf rund 1.200 Metern Seehöhe eignet sich für Radfahrer und Mountainbiker. Gschwandtkopf, Sonnenalm, das wunderschöne Gaistal oder Fulpmes im Stubaital. Es gibt mehr als genug Aussflugsziele in der Region Seefeld zu entdecken.

Das Alpina Seefeld ist eine wahre Wohlfühloase. Für Entspannung sorgt ein Spa Bereich mit Saunen, Dampfbad & Ruheraum. Vom Balkon aus genießt man einen einzigartigen Blick auf die atemberaubende Bergwelt Tirols. Das Alpina ist ein guter Mix aus Luxus und Tradition. Hier kann man Wandern, Klettern, Mountainbiken, Radfahren oder Spazierengehen. Der Anzahl an Freizeitmöglichkeiten sind keine Grenzen gesetzt. Golfspieler kommen ebenso auf Ihre Kosten wie Kletterer, Skifahrern oder Langläufer. Für letztere gibt es eine eigene Langlauf Academy. Wenn man Seefeld in 3 Worten zusammenfassen wollte, dann wären das wohl Abschalten-Wohlfühlen-Auftanken. Es gibt sie tatsächlich diese Sehnsuchtsorte, an die man sich ein Leben lang erinnert. Seefeld ist einer dieser Orte. Deswegen kommen viele Menschen immer wieder. Früher waren sie mit den eigenen Eltern da, heute kommen sie mit ihren Kindern. Seefeld verbindet - ein Leben lang.
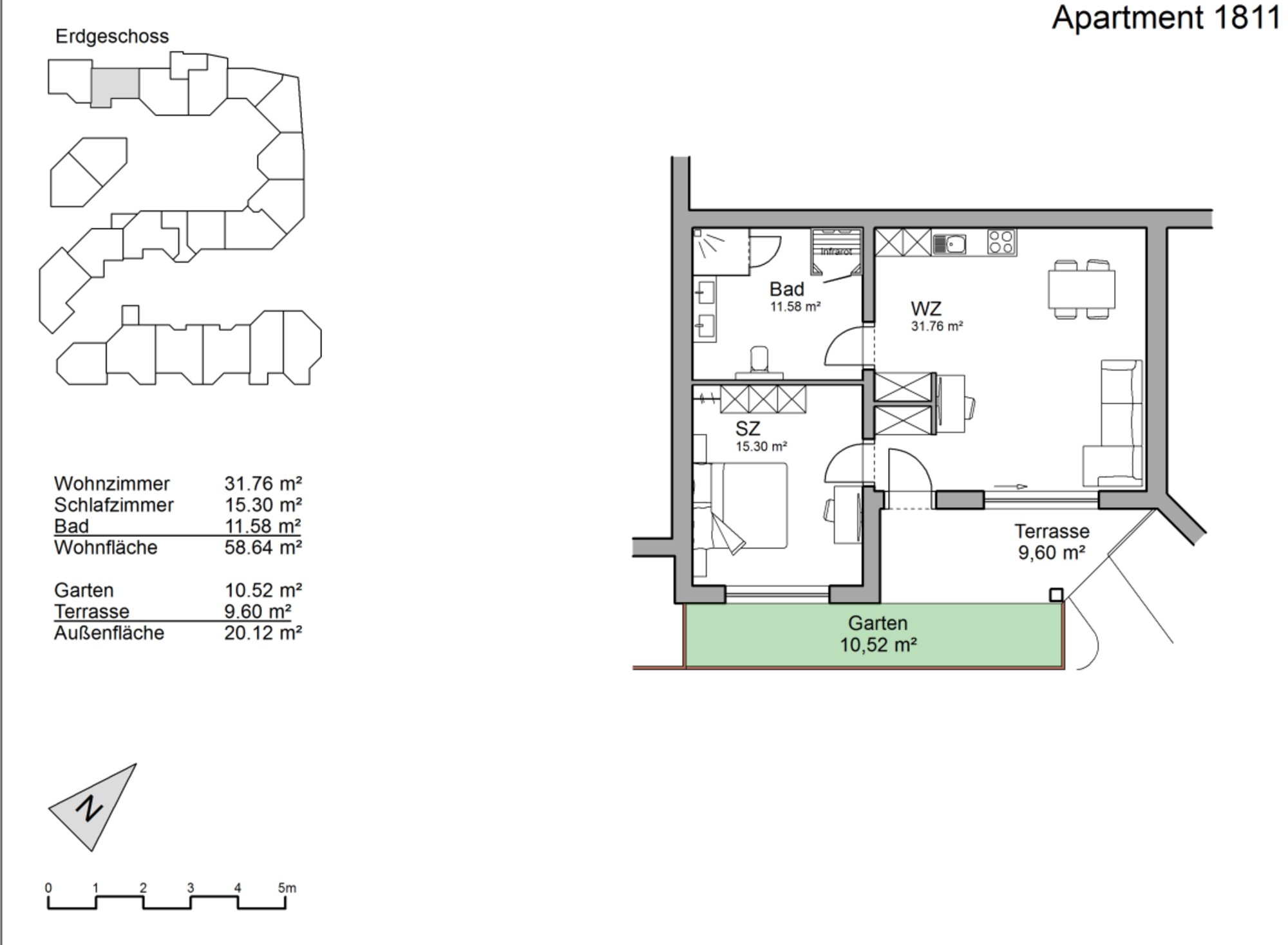
Exposé anfordernDas Apartment ist für 3-4 Personen ausgelegt. Es gibt 2 Schlafzimmer sowie eine Couch im Wohnzimmer. Zwei feine Badezimmer mit Dusche und WC, ein großzügiger Wohn-Ess-Küchenraum mit gemütlicher Sitzecke und integrierter Küche runden das schöne Ensemble ab. Im Vorraum befindet sich eine Gaderobe, dazu gibt es auch eine kleine Terrasse mit angrenzemdem Garten. Es ist alles vorhanden, was man für einen perfekten Aufenthalt braucht. Seefeld ist einer der beliebtesten Ferienorte in Österreich. Ein beschaulicher Ort mit ganz viel Charme und Tiroler Gastfreundschaft – gleichzeitig der ideale Ausgangspunkt Fans der nordischen Sportarten wie Skiroller-Fahren oder Sommerbiathlon.
Das Chalet & Apartment Alpina Seefeld wird als buy-to-let Modell geführt. Es handelt sich dabei um ein Investorenmodell, das sich in Österreich sehr gut etabliert hat und sich großer Beliebtheit erfreut. Die Betreibergesellschaft Alpen Parks kümmert sich um Vermietung, Instandhaltung und alle Themen rund um die Vermietung des Chalets. Dadurch bekommt man ein Sorglospaket, das einen angenehmen Aufenthalt möglich macht. Die gepflegte Anlage ist sehr beliebt, die Buchungslage das ganze Jahr über wirklich gut. Informieren Sie sich sehr gerne in einem direkten Gespräch mit uns, was man beim Kauf dieses Apartements im Detail beachten sollte.

Die Anlage Alpina Seelfeld ist wie eine typisch Tiroler Siedlung angelegt. Die gepflegte Gartenanlage macht vor allem im Sommer große Freude. Durch die immer heißer werdenden Sommer, wird der alpine Raum als Alternative zu Urlauben im Süden immer beliebter. Das ist auch an den aktuellen Buchungszahlen schon deutlich zu sehen. Die Nachfrage ist hoch wie nie zuvor, man flüchtet sozusagen aus den heißen Städten in die kühlen Berge.
Hier ist die Luft in der Nacht angenehm frisch, in der Nacht atmet man auf. Wer es trotz allem sonnig mag, der hat eine große Auswahl an Seen, Flüssen und kühlen Bergschluchten, die angenehme Abkühlung verschaffen. Großer Beliebtheit im Sommer erfreut sich das Olympiabad, aber auch der Wildsee und Kaltwassersee werden ihren Namen gerecht. Zentral sind im Sommer Themen wie Erholung, Entschleunigung und Entspannung! Sehen Sie selbst und vor allem: spüren Sie den Unterschied. Wir vereinbaren sehr gerne einen persönlichen Besichtigungstermin.
Exposé anfordernTiefverschneit am Hochplateau - so lässt sich der Winter in Seefeld in wenige Worte fassen. Die Begeisterung ist groß, wenn man auf gut präparierten Wegen durch eine frisch verschneite Landschaft laufen. Mit dem kleinen Quäntchen Glück sogar bei blauem Himmel und strahlendem Sonnenschein! Die 5 Orte der Region Seefeld – Tirols Hochplateau bieten ein ausgesprochen gutes Winterwandernetz und beste Voraussetzungen für eine Winterwanderung oder einen Spaziergang auf breiten flachen Wegen in einer unberührten Winterlandschaft. Es gibt insgesamt 142 km geräumte und beschilderte Winterwanderwege, 35 km Schneeschuhwandern sowie eine Menge an Weitwandermöglichkeiten. Auch das eine Sportart, die sich immer größerer Beliebtheit erfreut.
Exposé anfordern
Seefeld ist verkehrstechnisch sehr gut erschlossen. Sicher und schnell ist der Tiroler Ort nahe der Grenze zu Deutschland auf Schnellstraßen und Autobahnen zu erreichen. Wer möchte, kann aber auch bequem mit der Eisenbahn anreisen. Im Winter sorgen die Tiroler Räumprofis mit ihren Schneeräumgeräten für gut geräumte und eisfreie Straßen.