In Viehhofen im schönen Salzburgerland kommt eine ganz besondere Ferienimmobilie auf den Markt. Das Ferienappartement Rehrenberg am Eingang des Glemmtals ist ein romantisches Hideaway, das nicht nur alle Ansprüche an eine Ferienimmobilie erfüllt, sondern auch einen unmittelbaren Zugang zum Home of Lässig bietet. Besser geht es nicht! Von Viehhofen aus ist der Skicircus Saalbach-Hinterglemm- Leogang-Fieberbrunn in kürzester Zeit zu erreichen, man kann mit dem zellamseeXpress auch auf die für Familien besonders attraktive Schmittenhöhe gondeln. Der Blick von der Schmittenhöhe auf den Zeller See ist im Winter gleich atemberaubend wie im Sommer. Auf dem Kitzsteinhorn mit seinem Gletscher genießt man von Kaprun aus einen frühen Start in den Winter. Das Beste dabei: Sie brauchen nur eine Skikarte! Mit der Ski Alpin Card hat man Zugang zu allen drei Skigebieten!

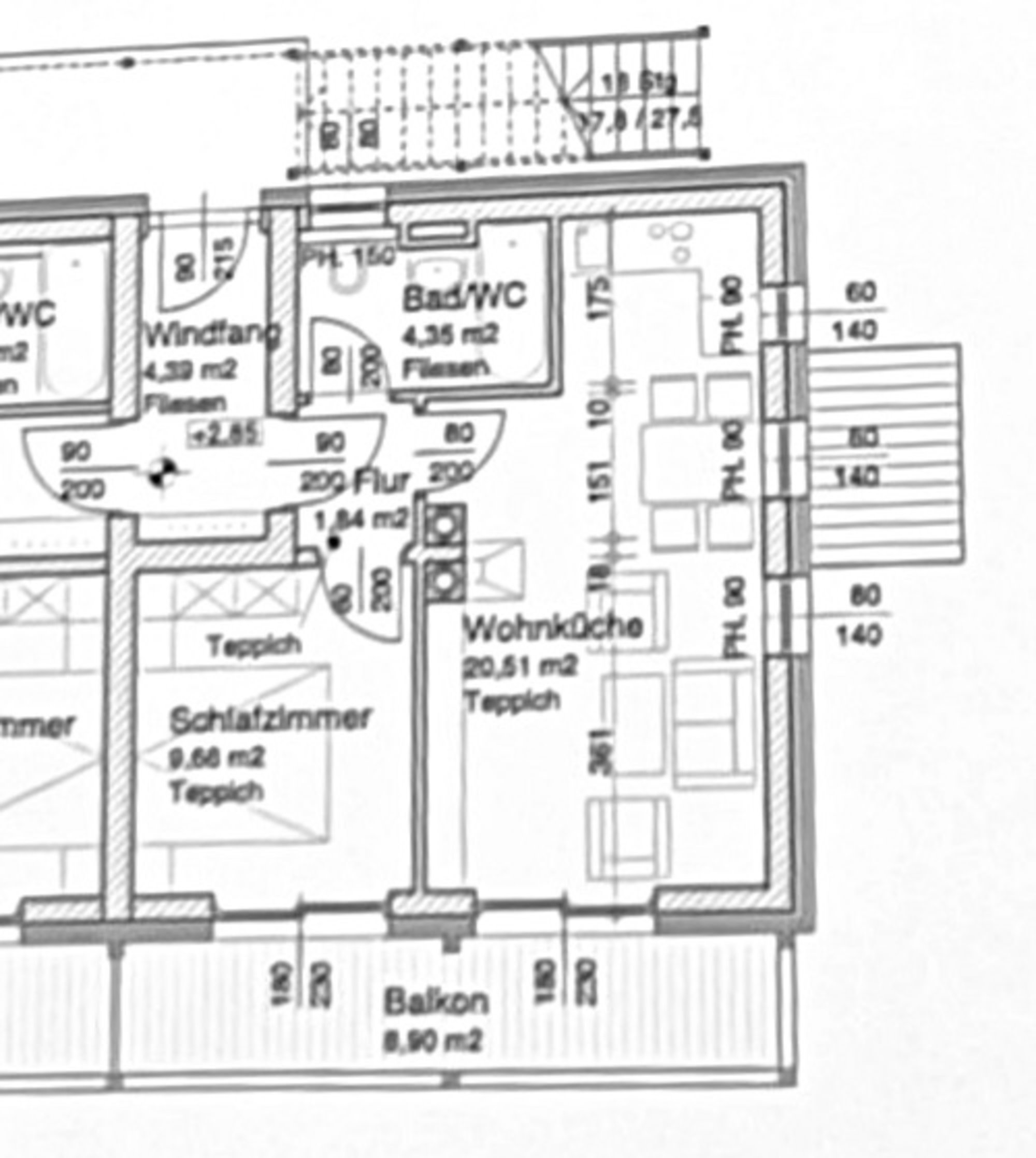
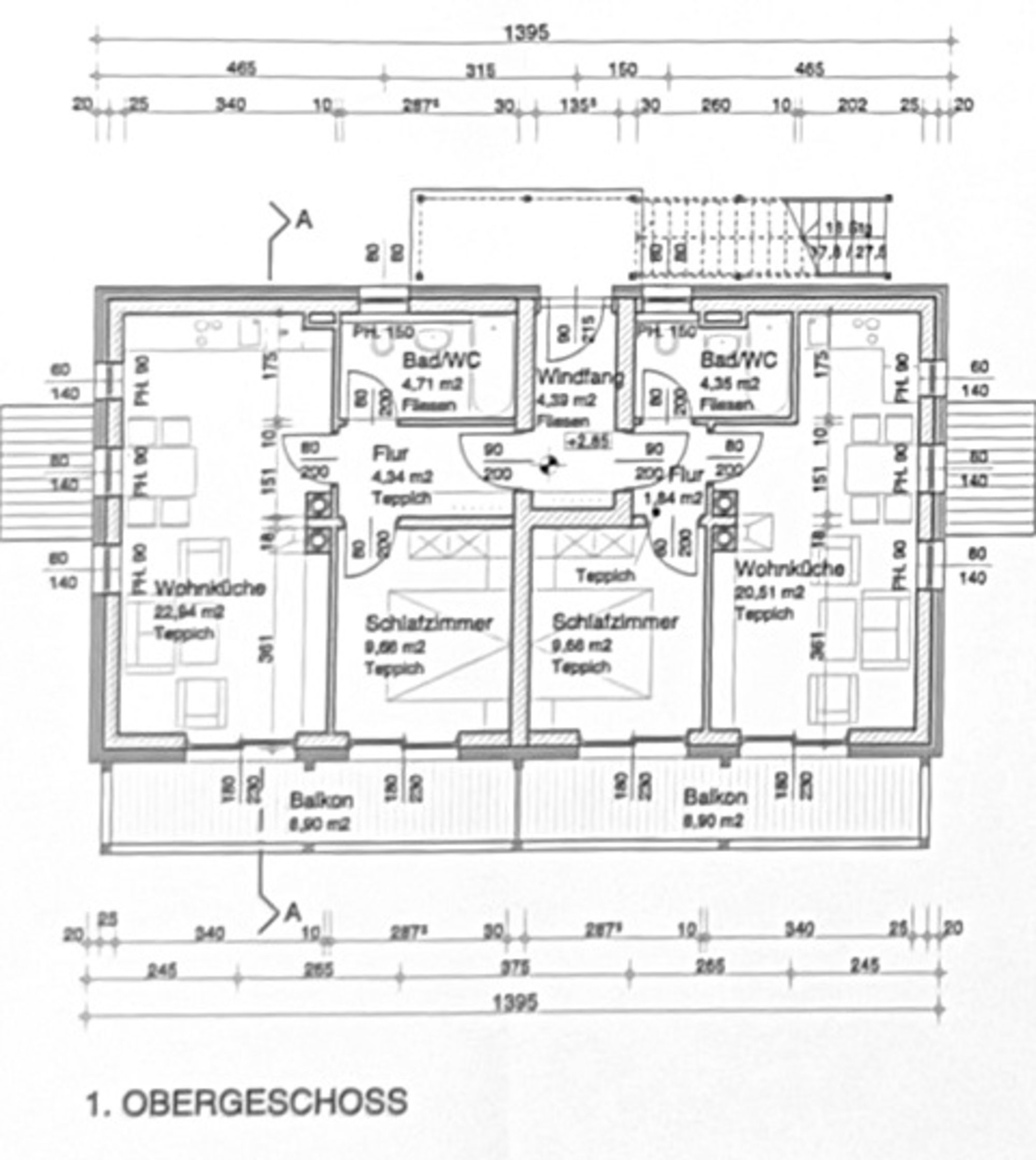
Bei der erst kürzlich auf den Markt gekommenen Ferienimmobilie Rehrenberg in Viehhofen handelt es sich um einen Wiederverkauf. Das Appartement liegt in einer sehr gepflegten Anlage, die keine Wünsche an eine perfekte Ferienimmobilie offen lässt. Eine Betreibergesellschaft kümmert sich um Vermietung, Instandhaltung und Reinigung des Appartements - Sie kaufen eine Ferienimmobilie als Sorglospaket!
Kontaktieren Sie uns sehr gerne für ein Informationsgespräch oder fordern Sie ganz einfach unser Exposé an. Sie werden begeistert sein!
Exposé anfordern
Viehhofen ist schon lange ein Geheimtipp für Wintersportfreunde und Outdoor Liebhaber. Am Eingang des weltbekannten Glemmtals gelegen, steht es landschaftlich den bekannten Wintersportorten Saalbach und Hinterglemm um nichts nach. Da es abseits vom Trubel liegt, zeichnet es sich insbesondere durch Ruhe und Gemütlichkeit aus. Hier gibt es sie noch, die Dorfidylle, die geprägt ist durch die Herzlichkeit und Freundlichkeit der Einheimischen.
Gute Luft. Sonnenschein. Eine atemberaubend schöne Landschaft. Das alles ist Viehhofen.
Winterwanderwege, Rodelbahnen und ein direkter Zugang zu 270 Pistenkilometer im weltbekannten Skigebiet "Home of Lässig" bieten unzählige Möglichkeiten, den Winter zu genießen. Das "Home of Lässig" ist weitum bekannt für seine perfekten Pistenbedingungen. Hier wird die Präparation der Abfahrten und Loipen zur Perfektion erhoben. Die Sonnenseite des Tales ist ideal für Wanderungen. Nette und ursprüngliche Hütten laden zur Jause ein. An kalten, sonnigen Tag ist eine Ausfahrt mit dem Pferdeschlitten ein wahrer Genuss. Probieren Sie es aus. Sie werden begeistert sein!
Exposé anfordernRadfahren und Mountainbiken gehören zu Viehhofen wie die zahlreichen Almhütten und Wanderwege. Das Angebot an ausgeschilderten Radwegen und Mountainbike Strecken ist groß. Das Glemmtal ist ein wahres Paradies für E-Bike Fahrer und Mountainbiker. Wer es etwas wilder mag, der wird von den Downhill Strecken in Saalbach-Hinterglemm und Leogang nicht genug kriegen. Viele der Gondeln, mit denen man im Winter auf die Gipfel fährt, um ins Tal zu wedeln, bieten Vorrichtungen an, um mit dem Rad auf den Berg zu fahren. Wer also den einen oder anderen Bergtrail probieren möchte, der packt sein Rad einfach in die Gondel. Wie im Winter beim Skifahren, kann man sich aber natürlich auch beim Trail- und Mountainbikefahren professionelle Hilfe holen. Es gibt eine ganze Liste von sehr gut ausgebildeten Mountainbike Trainern, die sicher und professionell führen.
Wer das Radfahren im klassischen Sinn mag, für den ist Viehhofen der beste Ausgangspunkt, um auf den Radwegen den Pinzgau zu erkunden. Von Maishofen aus geht es gemütlich an einem der schönsten Radwege der Region zum Zellersee. Dort kann man direkt am See gemütlich ein Eis essen oder ein kühles Bier trinken. Oder aber in den See springen und sich am kühlen Nass dieses einzigartigen Bergesees erfreuen.
Ob Sie Wandern, Mountainbiken, Trailfahren, Bogenschießen oder Wassersport lieben, in Viehhofen sind Sie in jedem Fall gut aufgehoben.
Exposé anfordern
Viehhofen liegt am Eingang des Glemmtals. Das Dorf ist verkehrstechnisch sehr gut erschlossen. Wer mit dem Auto anreist, braucht ca. 1 h von Salzburg und weniger als 2,5 h von München aus. Im Winter werden die Straßen bis zur Perfektion geräumt. Die Anfahrt in das Familienparadies Viehhofen ist sommers wie winters problemlos und einfach.
Unser Partner Alpen Parks ist der Ferienimmobilienprofi im Salzburger Land. Gemeinsam achten wir sehr darauf, dass ein Appartement aus unserem Produktportfolio alle Voraussetzungen für eine perfekte Ferienimmobilie erfüllt. Das zum Verkauf angebotene Appartement ist komfortabel und gemütlich eingerichtet. Die Küche ist mit Einbaugeräten ausgestattet, es gibt einen eigenen Stellplatz und ein Kellerabteil. Schwimmbad, Spa und Ruheraum runden das tolle Angebot ab. Hier werden keine Wünsche offen gelassen. Für Familien ist das Appartement ideal.